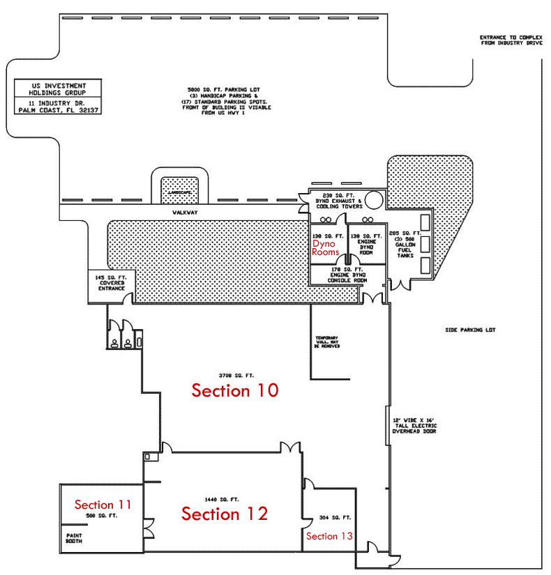
11 Industry Drive - US Highway 1 Frontage
6408 inside sq ft., 515 outside sq ft., 6923 total sq ft.
Available For 3 Year Lease - (916)761-3949
Optional 1500 sq ft. available for storage

Heat & AC throughout shop - 2 restrooms - Full Alarm System - Electric Roll up door 12ft x 16ft - Shop plumbed with air line throughout - Air compressor - Phone and Computer lines thoughout shop - (3) 500 gallon fuel tanks with pumps - Dyno water tank and cooling tower - 2 Dyno rooms with air control and mufflers, plumber with fuel, water and air - Paint Booth for Engines in seperate room - (2) 200 Amp/240 Volt Panels - Shop floors Tiled or Painted

Click a link or an area on the map to see pictures
Section 10 | Section 11 | Section 12 | Section 13 | Dyno Room | Back to Properties | Back to Homepage

Section 10 Section 11 Section 12 Section 13